- 興和ハウジングトップページ
- 新築一戸建てをエリアから探す
- 鎌ケ谷市
- 丸山
- 【南角地陽当り良好】フレッシュタウン丸山2
新築一戸建て
【南角地陽当り良好】フレッシュタウン丸山2
情報更新日:2026/05/08 次回更新予定日:2026/05/22
所在地千葉県鎌ケ谷市丸山2丁目1[周辺地図]
交 通東武野田線「鎌ケ谷」駅徒歩11分






鎌ケ谷駅からメインストリートを真っすぐフラットアプローチ
日常買い物施設、子育て施設充実エリア
日常買い物施設、子育て施設充実エリア
物件詳細情報
物件No.20000436431
| 所在地 | 千葉県鎌ケ谷市丸山2丁目1 | ||
|---|---|---|---|
| 交通 | 東武野田線「鎌ケ谷」駅徒歩11分 京成松戸線「鎌ヶ谷大仏」駅徒歩14分 京成松戸線「初富」駅徒歩18分 |
||
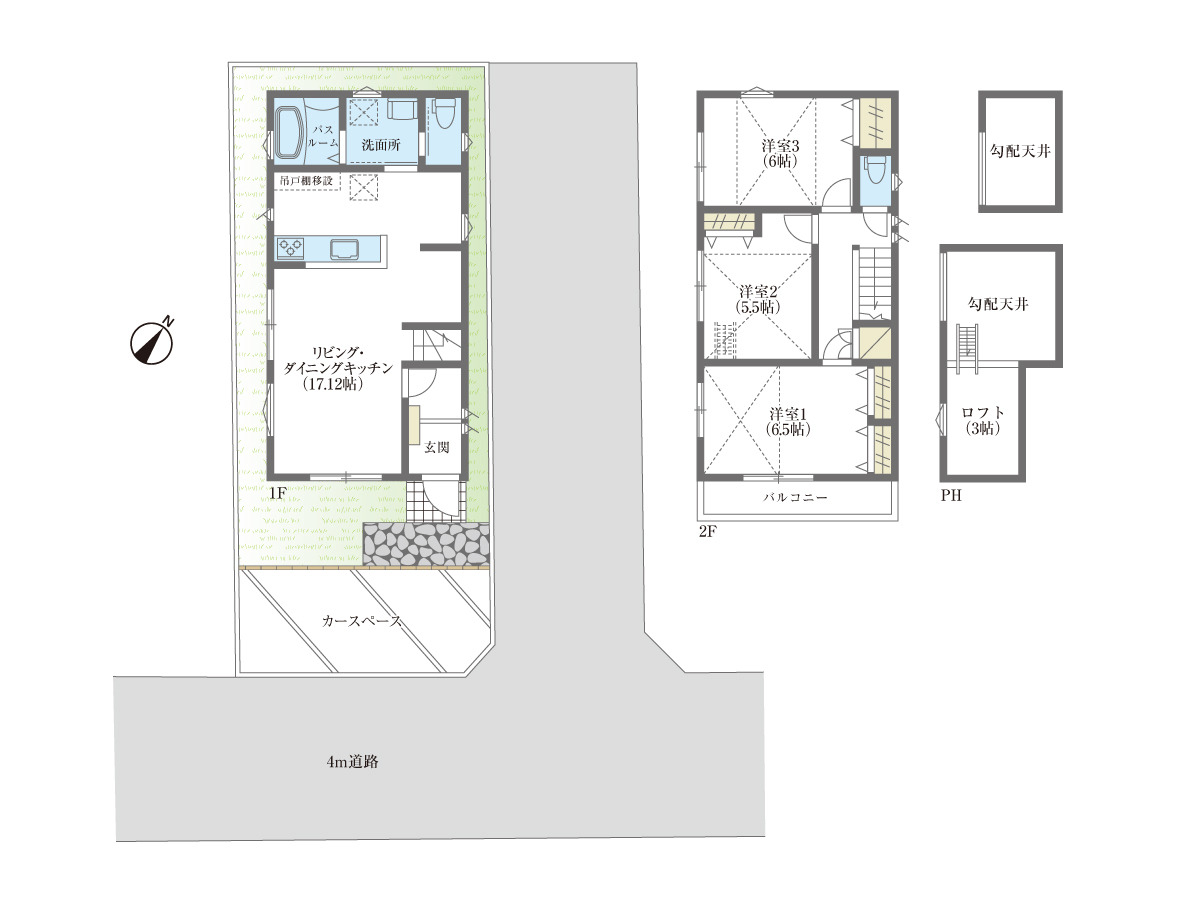
| 間取 | 3LDK + ロフト付き (LDK17.1帖、洋室6.5帖、洋室6帖、洋室5.5帖) | ||
| 土地面積 | 86.9m² | ||
| 建物面積 | 82.62m² | ||
| 販売戸数 | 1戸 | 総戸数 | 全1戸 |
| 構造・規模 | 木造 2階建て | 築年・入居 | 2026年6月下旬 |
| バルコニー | 南向き | 建物現況 | 未着工 |
| 駐車スペース | 1台(カースペース) | 引渡時期 | 期日指定有(2026年6月下旬) |
| 施工会社 | 第252346号 | 地目 | 宅地 |
| 用途地域 | 第一種低層住居専用地域 | 建ぺい率 | 50% |
| 容積率 | 100% | 都市計画 | 市街化区域 |
| 権利種類 | 所有権 | 接道 | 南側4M公道に接道 |
| 小学校区 | 東部小学校(1040m) | 中学校区 | 第2中学校(700m) |
| 取引態様 | 売主 | ||
| 販売スケジュール | 先着申込 | ||
| 設備 | 公営水道、本下水、都市ガス | ||
こだわり項目
角地整形地平坦地緑豊かな住宅地閑静な住宅地地盤調査済南側道路LDK15帖以上省エネ・エコ住宅南向き床下収納全居室収納吹抜け複層ガラス省エネ給湯器ガスコンロシステムキッチンカウンターキッチン3口以上コンロトイレ2ヶ所温水洗浄便座節水型トイレシャワー付洗面台浴室乾燥機浴室暖房追焚機能浴室1坪以上浴室に窓天井高2.5M以上全居室フローリングロフトTVモニタ付インターホン電動シャッター保育園・幼稚園800m以内陽当り良好
- ※価格は物件の代金総額を表示しており、消費税が課税される場合は税込み価格です。(1,000円未満は切り上げ。)
税率は引き渡し時期により異なりますので、各物件の詳細につきましてはお問い合わせください。 - ※敷地権利が借地権のものは価格に権利金を含みます。
- ※制作中に内容が変更される場合もありますので、あらかじめご了承ください。
- ※購入の前には物件内容や契約条件についてご自身で十分な確認をしていただくようにお願いいたします。
- ※完成予想図はいずれも外構、植栽、外観等実際のものとは多少異なることがあります。
- ※CG合成の画像の場合、実際とは多少異なる場合があります。
周辺地図
周辺施設一覧
- ショッピングセンター
- スーパー
- コンビニ
- ドラッグストア
- ホームセンター
- 飲食店
- その他店舗
- 商店街
- 大学
- 専門学校
- 高校・高専
- 中学校
- 小学校
- 保育園
- 幼稚園
- 公民館・児童館
- 病院
- 郵便局
- 役所
- 図書館
- 金融機関
- 警察・消防
- 趣味・娯楽施設
- 公園・運動施設
- 周辺の街並み
- 駅
- その他
お問い合せ先
- 株式会社興和ハウジング
- お電話でのお問い合わせは
047-424-6700「ホームページを見た」とお問い合わせください - 千葉県船橋市東船橋3-38-15
- 営業時間:AM9:00~PM5:00(月〜金),[~PM5:30(土・日・祝)
- 定休日:毎週水曜、第1・3・5火曜
- 免許番号:千葉県知事免許(10)第8765号
- 興和ハウジングトップページ
- 新築一戸建てをエリアから探す
- 鎌ケ谷市
- 丸山
- 【南角地陽当り良好】フレッシュタウン丸山2









